Mechanical Shop Drawings
Professional HVAC & Mechanical System Drawings
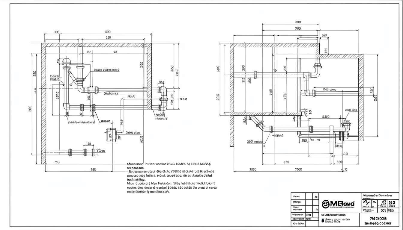
Mechanical Shop Drawing Services
Professional mechanical shop drawing services for HVAC and mechanical systems. We create detailed shop drawings for ductwork, piping, equipment, and controls using Revit MEP and AutoCAD MEP, ensuring accurate fabrication and installation.
Our Services
- HVAC ductwork layouts and details
- Mechanical piping systems
- Equipment installation drawings
- Duct and pipe support details
- Control system schematics
- Coordination with other trades

HVAC Systems
Complete HVAC ductwork and equipment shop drawings.
Equipment Details
Mechanical equipment installation and connection details.
Installation
Detailed installation drawings with supports and hangers.
Expert Mechanical Shop Drawings
Contact us for professional mechanical detailing services.
Contact Us